中古マンション
ロワールマンションフィル和白





この物件のお支払い例 頭金/ボーナス払い0円 頭金0円
- 物件価格
- 1,400万円
- 月々の支払い
(初回お支払額)
-
{{ monthlyPayment?.toLocaleString() }}円
※上記支払例の借入条件:金利{{ loanInterestRate }}%、借入総額1,400万円(うちボーナス払い{{ loanBonusMan }}{{ loanBonusUnit }}円)、借入期間{{ loanTerm }}年、{{ loanPaymentMethodName }}返済方式、ボーナス支払額(初回){{ bonusPayment?.toLocaleString() }}円
支払いシミュレーション
- 万円
- 万円
- %
- 万円
ボーナス払い | {{ loanTerm }}年 |
---|---|
0万円 | |
5万円 | |
10万円 | |
15万円 | |
20万円 | |
25万円 | |
30万円 | |
35万円 | |
40万円 | |
45万円 | |
50万円 |
× 閉じる
所在地・交通
所在地 | 福岡県福岡市東区和白3丁目13-20 ロワールマンションフィル和白 | ||
---|---|---|---|
交通 |
西鉄貝塚線 和白駅 徒歩4分 (280m) JR香椎線 和白駅 徒歩4分 (300m) JR鹿児島本線 福工大前駅 徒歩21分 (1635m) |
その他交通 | 西鉄バス和白停 徒歩4分 (270m) |
小学校校区 |
福岡市立和白小学校 |
中学校校区 |
福岡市立和白中学校 |
※学校区は住所から自動判定したものであり、保証できる情報ではございません。正確な学校区はお問い合わせ下さい。
「人型アイコン」を地図上にドラッグすることで『Google ストリートビュー』に切り替わります。
※地図上の「対象地」は実際の場所ではない場合がございます。詳しくはお問い合わせください。
物件概要
価格 |
1,400万円
|
種目 | 中古マンション |
---|---|---|---|
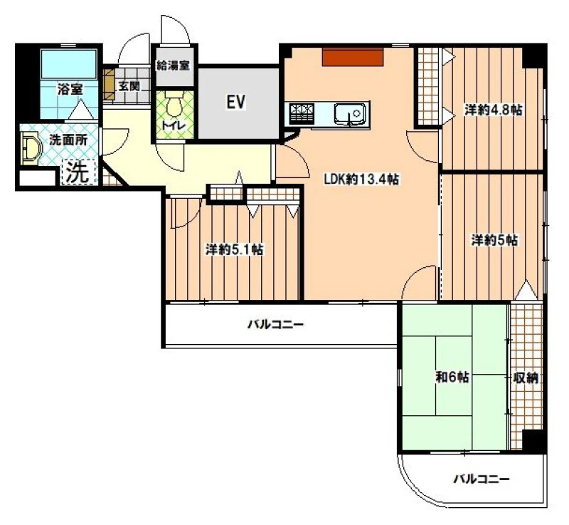
間取り | 4LDK | 間取り向き | |
専有面積 | 79.32㎡(壁芯) | 建物構造 | 鉄筋コンクリート(RC) |
バルコニー面積 | 10.95㎡ | バルコニー向き | 南西 |
階数 | 5階建 | 所在階 | 3階 |
築年月(竣工月) | 1990年 1月 | 駐車場 | 近隣 7,128円 |
総戸数・総区画数 | 25 | 販売戸数・販売区画数 | |
管理費 | 12,100円 | 積立金 | 18,880円 |
管理形態/管理方式 | 一部委託/ | ||
建ぺい率/容積率 | 都市計画 | ||
土地権利 | 所有権 | 地勢 | |
用途地域 | 第一種住居 | 国土法 | |
現況 | 空家 | 取引態様 | 媒介 |
建築確認番号 |
取引条件等
引渡し | 相談 |
---|
その他
設備 | カウンターキッチン、IHクッキングヒーター、温水洗浄便座、シャンプードレッサー、室内洗濯機置場、オール電化、収納スペース、エレベータ、駐輪場、オートロック、エレベータ | ||
---|---|---|---|
特徴 | |||
諸条件・相談 | ペット相談 | ||
情報登録日 | 2025年8月13日 | 情報更新予定日 | 2025年10月16日 |
物件番号 | 640586 |