中古マンション
藤和ハイタウン和白丘Ⅱ





この物件のお支払い例 頭金/ボーナス払い0円 頭金0円
- 物件価格
- 2,849万円
- 月々の支払い
(初回お支払額)
-
{{ monthlyPayment?.toLocaleString() }}円
※上記支払例の借入条件:金利{{ loanInterestRate }}%、借入総額2,849万円(うちボーナス払い{{ loanBonusMan }}{{ loanBonusUnit }}円)、借入期間{{ loanTerm }}年、{{ loanPaymentMethodName }}返済方式、ボーナス支払額(初回){{ bonusPayment?.toLocaleString() }}円
支払いシミュレーション
- 万円
- 万円
- %
- 万円
ボーナス払い | {{ loanTerm }}年 |
---|---|
0万円 | |
5万円 | |
10万円 | |
15万円 | |
20万円 | |
25万円 | |
30万円 | |
35万円 | |
40万円 | |
45万円 | |
50万円 |
× 閉じる
所在地・交通
所在地 | 福岡県福岡市東区和白丘1丁目19-5 藤和ハイタウン和白丘Ⅱ | ||
---|---|---|---|
交通 |
JR鹿児島本線 福工大前駅 徒歩5分 (400m) |
その他交通 | |
小学校校区 |
福岡市立美和台小学校 |
中学校校区 |
福岡市立和白丘中学校 |
※学校区は住所から自動判定したものであり、保証できる情報ではございません。正確な学校区はお問い合わせ下さい。
「人型アイコン」を地図上にドラッグすることで『Google ストリートビュー』に切り替わります。
※地図上の「対象地」は実際の場所ではない場合がございます。詳しくはお問い合わせください。
物件概要
価格 |
2,849万円
|
種目 | 中古マンション |
---|---|---|---|
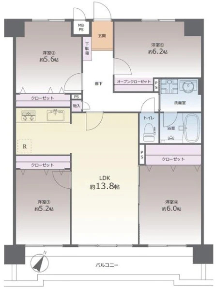
間取り | 4LDK | 間取り向き | |
専有面積 | 83㎡(壁芯) | 建物構造 | 鉄骨鉄筋コンクリート(SRC) |
バルコニー面積 | 12.22㎡ | バルコニー向き | |
階数 | 11階建 | 所在階 | 6階 |
築年月(竣工月) | 1994年 11月 | 駐車場 | |
総戸数・総区画数 | 50 | 販売戸数・販売区画数 | |
管理費 | 7,920円 | 積立金 | 20,718円 |
管理形態/管理方式 | 全部委託/ 日勤 | ||
建ぺい率/容積率 | 都市計画 | ||
土地権利 | 所有権 | 地勢 | |
用途地域 | 準工業 | 国土法 | |
現況 | 空家 | 取引態様 | 媒介 |
建築確認番号 |
取引条件等
引渡し | 相談 |
---|
その他
設備 | |||
---|---|---|---|
特徴 | |||
諸条件・相談 | |||
情報登録日 | 2025年7月12日 | 情報更新予定日 | 2025年10月8日 |
物件番号 | 598603 |